湖北襄阳赵府(116)建筑地址赵府在哪里:湖北省襄阳市建筑风格:高端订制,欧式建筑尺寸:12.7X12.3结构形式:框架(异形柱)建筑面积:360㎡土建造价:58万项目概况
该项目位于湖北襄阳赵府在哪里,为欧式风格。设计主要为满足业主一家日常居住使用赵府在哪里,业主钟爱简约的欧式风格别墅,并在项目前期从我们网站上图库中挑选了一款欧式别墅的图纸作为模板,设计师根据业主家的实际使用需求,对平面布局、结构以及排水等方面进行了改良设计。由于业主非常看重原设计的立面外观,因此设计师并未对立面造型做过多改变。

【鸟瞰效果图△】
户型设计
【一层户型图△】
我们设计的时候根据业主功能需要,整体布局为左右对称。中间入户,即门厅,会客厅在门厅一侧。长辈房有单独的卫生间。该层还设有厨房、餐厅、茶道室,公卫。楼梯下方可以设置储物间。

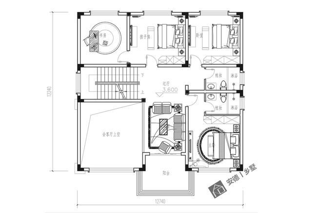
【二层户型图△】
二层整个客厅是挑空的,配有居家的家庭厅,两个次卧。儿童房单独设计书房。房间尺度适宜,符合人体功能学。

【三层户型图△】
三层有家庭式,主卧室内部有衣帽间(后期可改为卫生间),有一个独立的家庭影音室。一个次卧,和公共卫生间,采光好的地方有大露台,可以晾晒。
效果设计
该项目整体的外观采用欧式风格,整个外观运用米黄色色调,露台栏杆用罗马柱,让整个建筑看起来更高大上。蓝色的屋顶更能提升品质,屋檐的处理让建筑更有层次,外观的造型柱更能体现整体的层次感。

【人视效果图△】

【正立面效果图△】

【北面人视效果图△】

【北面人视效果图△】
END
© 版权声明
文章版权归作者所有,未经允许请勿转载。
版权声明:
1、IT大王遵守相关法律法规,由于本站资源全部来源于网络程序/投稿,故资源量太大无法一一准确核实资源侵权的真实性;
2、出于传递信息之目的,故IT大王可能会误刊发损害或影响您的合法权益,请您积极与我们联系处理(所有内容不代表本站观点与立场);
3、因时间、精力有限,我们无法一一核实每一条消息的真实性,但我们会在发布之前尽最大努力来核实这些信息;
4、无论出于何种目的要求本站删除内容,您均需要提供根据国家版权局发布的示范格式
《要求删除或断开链接侵权网络内容的通知》:https://itdw.cn/ziliao/sfgs.pdf,
国家知识产权局《要求删除或断开链接侵权网络内容的通知》填写说明: http://www.ncac.gov.cn/chinacopyright/contents/12227/342400.shtml
未按照国家知识产权局格式通知一律不予处理;请按照此通知格式填写发至本站的邮箱 wl6@163.com
1、IT大王遵守相关法律法规,由于本站资源全部来源于网络程序/投稿,故资源量太大无法一一准确核实资源侵权的真实性;
2、出于传递信息之目的,故IT大王可能会误刊发损害或影响您的合法权益,请您积极与我们联系处理(所有内容不代表本站观点与立场);
3、因时间、精力有限,我们无法一一核实每一条消息的真实性,但我们会在发布之前尽最大努力来核实这些信息;
4、无论出于何种目的要求本站删除内容,您均需要提供根据国家版权局发布的示范格式
《要求删除或断开链接侵权网络内容的通知》:https://itdw.cn/ziliao/sfgs.pdf,
国家知识产权局《要求删除或断开链接侵权网络内容的通知》填写说明: http://www.ncac.gov.cn/chinacopyright/contents/12227/342400.shtml
未按照国家知识产权局格式通知一律不予处理;请按照此通知格式填写发至本站的邮箱 wl6@163.com